巴西圣保羅州奢華度假大宅(下)
2012-11-7

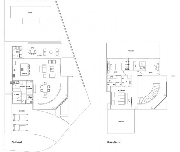
充滿熱帶風情的巴西圣保羅州奢華度假大宅

充滿熱帶風情的巴西圣保羅州奢華度假大宅
您可能還關注
- 行業新聞
- 加盟指導
- 經商寶典
- 消費資訊
回復 232787 到 家紡網 微信
隨時隨地看,還可以轉發到朋友圈哦。
隨時隨地看,還可以轉發到朋友圈哦。
熱點資訊
熱點圖文

早餐健康吃法 最實用的排毒早餐
我們身體的疾病,大都是因為我們體內毒素長久積累。不管糖尿病、心臟病、高血壓、癌癥,幾乎統統都是毒素長期累積的結果。如果我...

秋季養生 為冬季儲備健康
秋高氣爽,各種果蔬開始陸續上市。然而,究竟哪些食物最有利于秋季養生呢?美國《健康》雜志最新載文,刊出“秋季13種超級食物...

5款地毯巧搭讓家“暖暖”的
地毯從來不是家里的必需元素,但卻是冬日溫暖的重要來源。毛茸茸的地毯,視覺上的熱烈圖騰讓溫暖感倍增,觸覺的溫柔更是升溫王道...

神奇收納 廚房也能如此美(1)
最怕廚房臟亂差,適當增加以下收納功能,原來廚房也可以如此美。吞吐量暴增的神奇收納廚房也能美得你心癢癢吞吐量暴增的神奇收納...

花園DIY技巧 小資情調隨手打造
花園是鮮花和綠樹的家園,在設計花園時千萬要小心不要破壞原有的規律和美景,要將一切都融入到自然中去,讓人置身其中能感受到大...
掃一掃關注微信
更多精彩等著你……
品牌投資關注榜
- 10萬以下
- 10-20萬
- 20-40萬
- 40萬以上






































































浙公網安備33010602010414號
